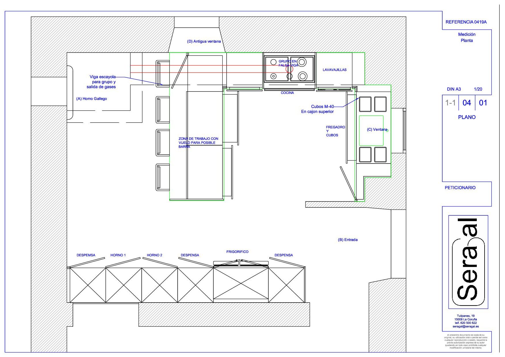
Imágenes de medición
Plano proyecto

Renders del proyecto
Bases del diseño de la cocina
Diseño:
• Pared horno de piedra libre (permite usar el horno, y se puede instalar la bilbaína) (se recomienda en
la zona del horno de piedra la instalación de un suelo cerámico; si se va a utilizar)
• Fregadero en ventana, con mueble gabetero de 120, que permite un fregadero de gran tamaño.
• Cocina independiente cerca de fregadero, con instalación de grupo en falsa viga para llevar salida de
gases a chimenea, y dejar la zona alta libre.
• Ausencia de muebles colgantes para mantener pared de piedra libre.
• Ausencia de rinconeros.
• Gran zona de trabajo en península con posibilidad de usarla para comer.
• Gran cantidad de mobiliario de almacenamiento, con muebles bajos gabeteros, y zona de columnas
en pared izquierda hasta techo.
• Posibilidad de instalación de hornos en columnas, tanto microondas como hornos a vapor, que
complementaran al horno de la cocina independiente y quedan cerca de la barra o zona de trabajo.







